用iPhone 12 Pro LiDAR扫描,Canvas支持导出专业CAD模
2020-12-17
两款iPhone12 Pro的亮点功能之一是LiDAR。夜间模式的人像拍摄已经给人留下了深刻的印象,而现在一款可以创建全家3D扫描的应用程序同样如是。
Canvas能够允许你扫描自己的房间,然后再支付一笔费用就可以把它们变成专业的CAD模型并用来帮助改造房子。留心的读者应该会注意到,它曾在iPhone12的发布会中出现过……
使用这款应用相当简单。站在房间中央,点击Scan扫描按钮。然后它就会在你的房间覆盖相应的增强现实网格,而这看起来就像是“星际迷航”中的世界。只需在你缓慢转身时上下移动手机即可覆盖整个网格。当完成捕捉房间的特定区域时,相应的网格就会消失。
日前,9to5mac的Ben Lovejoy撰文分享了自己的使用体验。下面是映维网的具体整理:
之所以说“相当简单”,是因为我确实遇到了一定的问题。当我第一次在办公室里尝试时,它是以失败告终。我们认为这是因为房间太小,只有大约10英尺*9英尺(约3米*2.7米)。我们的客厅同样具有挑战性,因为它有一个厨房壁龛,而且你站在房间里的任何地方都无法看到包含所有垂直表面的全景。最好的折衷方案是假设它看不见的表面是一堵墙而不是一扇门。
需要提醒的是,完成扫描时的第一个结果看起来并不理想。

接受查看优化扫描的邀请同样无法增加信心,因为处理屏幕显示的内容看起来……非常粗略。

尽管存在一种超现实的触感和弯曲边缘的游离直线,但这看起来更为合理。

但这时你确实拥有了一个合理的房间AR模型。你现在可以站在另一个房间里,转过身来查看你的AR模型。当然,有些角度看起来依然不太可能构成详细CAD模型的基础。
然而,它们已经与我们提前创建的专业平面图完美匹配。

当你通过应用程序订阅CAD模型时,不可思议的事情就会发生。根据你本人或承包商所需的格式,你可以选择价格为15美元的二维平面图和一系列成本为29美元或39美元的三维模型。所述应用程序支持SketchUP(.skp.dwg和.dae)、Revit(.rvt、.dwg和.ifc)和Chief Architect(.plan、.dwg和.dae)。包括重新处理的扫描。
我把结果交给了从事设计的建筑师朋友,而他同样感到印象深刻。
“哇,太详细了!它甚至通过不同的层来隔离天花板和其他部分。这给我留下了非常深刻的印象,因为这一般需要几个小时的工作!”
他证实,模型适合承包商使用。所有图片都可以在一个新的标签页中查看,并以更大的尺寸进行浏览。
如果你不使用任何应用程序,你依然可以在线查看模型,而结果同样让我大吃一惊。例如,顶部图像是通过简单地取消选中“地板”、“天花板”和“墙壁”创建而成。然后我就可以旋转模型,放大它,然后绕着它走。

从另一个角度来看也是一样,但这次我勾选了门和窗。

它能够显示不包含任何物品的架子和葡萄酒架,这真的给我留下了深刻的印象。

你可以自由地在图像中行走穿行。这是透过书架看到的湖面。

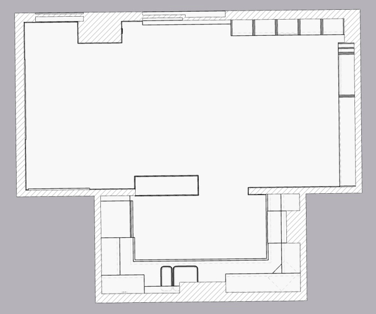
最后,2D平面图。尽管不是非常令人兴奋,但可能是最为有用的产出。

我不得不说我印象非常深刻。最终的结果是模型和平面图,而传统的创建方式需要高得多的成本。另外,在考虑如何使用或重组空间时,允许你以不同方式探索模型的功能同样非常有用。
Canvas可免费通过App Store下载,但要将扫描转变成CAD模型,根据格式的不同,价格是一个房间15美元或39美元。
原文来自映维网:https://news.nweon.com/81523
VR头显真的需要到180Hz吗?
2020-05-13
前HTC CEO周永明发布了一体式VR头显Mova
2020-05-27
数字化虚拟景区:未来必然趋势
2020-05-15
全球首次!圆周率科技5G+VR直播带你“云登顶”世界屋脊
2020-05-28
iPad Pro:HoloLens 2第三人称视角的最佳解决方案
2020-05-13